
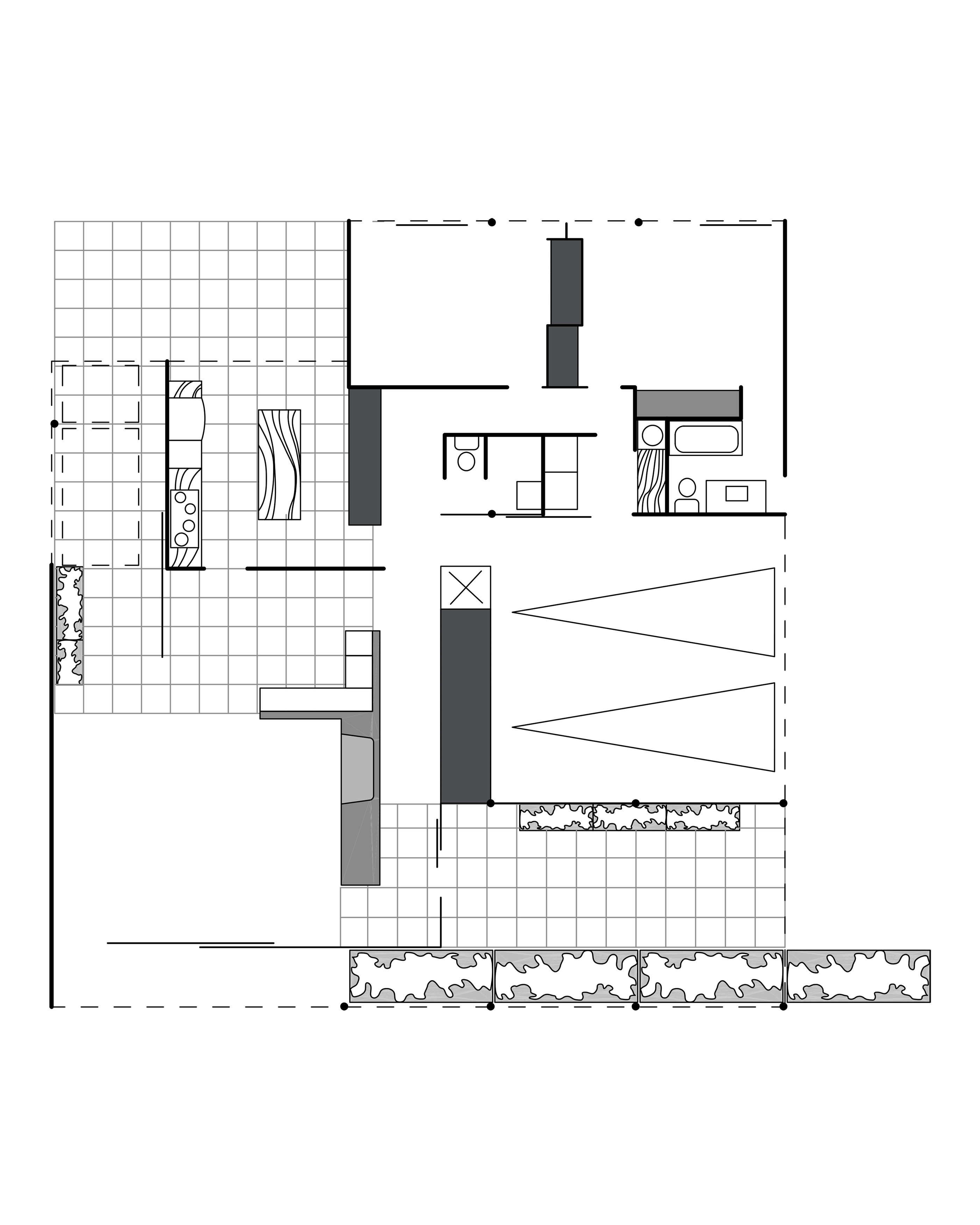
Sailor Moon (character) + Kunsten Museum of Modern Art / Alvar Aalto (floorplan)
Superfluous Studio:
ioud - Institute of Urban Design
University of Innsbruck
2022
Studio Description
The students were asked to retrace existing architectural drawing and cartoon character in an effort to bring those two elements of a similar medium into the same language. They were asked to lose specific architectural elements from the drawings and certain characteristics of the cartoon characters and share their attributes in order to create a new hybrid drawing. This exercise is for the purpose of examining existing architectural representation techniques whilst conceptually broadening design proficiency through figuration and abstraction concepts.
Fill-in-the-Blanks: Hybrid Drawings
Second Year Undergraduate Design Studioioud - Institute of Urban Design
University of Innsbruck
2022
Studio Description
The students were asked to retrace existing architectural drawing and cartoon character in an effort to bring those two elements of a similar medium into the same language. They were asked to lose specific architectural elements from the drawings and certain characteristics of the cartoon characters and share their attributes in order to create a new hybrid drawing. This exercise is for the purpose of examining existing architectural representation techniques whilst conceptually broadening design proficiency through figuration and abstraction concepts.






























































